CABIN
절제한 창고
Hut
마룸이 디자인한 가든하우스,HUT
1.소재의 소박함
창고가 돋보이지 않고 조연이 되길 바랍니다.그래서 가장 적합한,어디에서나 볼수있는 골강판을 사용하였습니다.
골강판 중에서도 패턴이 불규칙적이고 심미적인 아연도금 골강판을 사용하였습니다.
골강판은 충분히 시간이 흐르면 시골의 오래된 방앗간처럼 산화되어 자연스럽게 갈색이 되고,전면의 스프러스는 회색빛으로 에이징이 됩니다.

2. 구조의 견고함(평생 사용할 수 있는 안정적인 구조)
창고는 평생 동안 외부의 악조건(비바람, 태풍, 폭우, 폭설 등)에 노출됩니다.
DIY로 값싸게 구입할 수 있는 플라스틱 창고나 강판 창고는 성인 남성 1인이 쉽게 설치할 수 있는 장점이 있지만, 쉽게 만들 수 있는 만큼 내구성에도 한계가 있습니다.
창고는 견고해야 합니다. 시중의 제품은 최소한의 기능을 갖추고 가장 합리적인 가격으로 공급되지만, 사실 창고는 어떤 환경에서도 견딜 수 있는 내구성에 초점을 맞춰야 합니다.
따라서 창고는 공장에서 100% 제작된 제품일 때 내구성을 보장할 수 있습니다.

3. 건축허가의 자유로움
시중에 판매되는 대부분의 창고는 법규적인 측면에서 맹점을 가지고 있어 철거될 가능성을 항상 내포하고 있습니다.
물론 해체 후 다시 설치할 수도 있지만, 그런 번거로운 일은 가능한 피하는 것이 좋겠죠.
마룸의 휠은 고하중 바퀴와 높이 조절 좌가 창고와 어울리도록 처음부터 일체화된 디자인으로 계획되었습니다.
허가만 벗어나기 위해 억지로 달린 바퀴는 전복의 위험성을 내포하고 있습니다.
반면, 마룸의 휠은 강풍에 대응하며 실제로 움직일 수 있는 견고함이 장점입니다.

4. 디테일이 없는 디테일
소박하면서도 존재감을 드러내지 않고, 견고한 아날로그 창고를 디자인했습니다.
창고는 방수가 기본이며, 러프한 외관 속에 치밀한 계산이 담겨 있습니다.
내부는 새로운 E0급 친환경 합판과 90x90 사이즈의 구조목을 사용하여 구조와 마감을 동시에 해결합니다.
창고안쪽은 누구나 편하게 원하는 대로 꾸밀 수 있도록 구조목으로 다양한 가능성을 담았습니다.
합판+방수 시트+골강판으로 견고한 방수 능력을 갖추었습니다.



5. 창의 개폐방식
전면에 아날로그한 창이 있어 창고 안쪽까지 빛이 들어옵니다.
나무 창문은 막대로 고정할 수 있고, 위로 열립니다
에어쇼바를 적용할 수도 있지만, 이 창고에서는 이 방식이 더 어울립니다.
창문을 고정하는 막대는 경첩이 달려 있고, 막대 안쪽에는 자석이 매립되어 있어 접히면 자연스럽게 창문과 하나가 됩니다.





내부
내부는 60cm 간격으로 구조목이 일정하게 세워져 있습니다.
덕분에 구조목을 이용해 기성 선반을 구입하거나, 목공으로 직접 만들어서 원하는 대로 설치할 수 있습니다
창고의 처마 안쪽과 맞은편 안쪽벽에 각각 조명이 있습니다.
집을 만들 때 적용하는 깔끔한 마감보다는 기교 없이 러프한 모습을 의도했습니다.
가장 기본적인 형태의 조명을 적용하였고, 창고 안쪽에는 1개의 기본 콘센트, 1구 스위치, 그리고 2개의 조명(안과 밖)이 있습니다.
전기 배선은 아주 간단한 형태로, 별도의 누전 차단기는 포함되어 있지 않습니다.
창고 아래에 있는 콘센트를 멀티탭에 꽂아 사용하는 방식입니다.
<자주 묻는 질문>
✔ 건축 허가 없이 설치 가능한가요? → 네, 바퀴가 장착된 이동식 창고로 허가 없이 사용 가능합니다.
✔ 설치는 어떻게 하나요? → 제품이 완조립된 상태로 배송되며, 크레인이나 지게차를 이용해 원하는 곳에 배치하면 됩니다.
✔ 전기 연결이 가능한가요? → 네, 내부 콘센트 및 조명이 기본 제공됩니다.
" 우리가 만드는 내구성 있는 것들이 좋은 경험을 쌓고 영감의 원천이 되어, 당신의 삶이 풍요롭도록 기여하고자 합니다. "


| SPEC | |
| 모델 | 헛 / hut |
| 구조 | 하이브리드 금속구조(아연각관+구조목) |
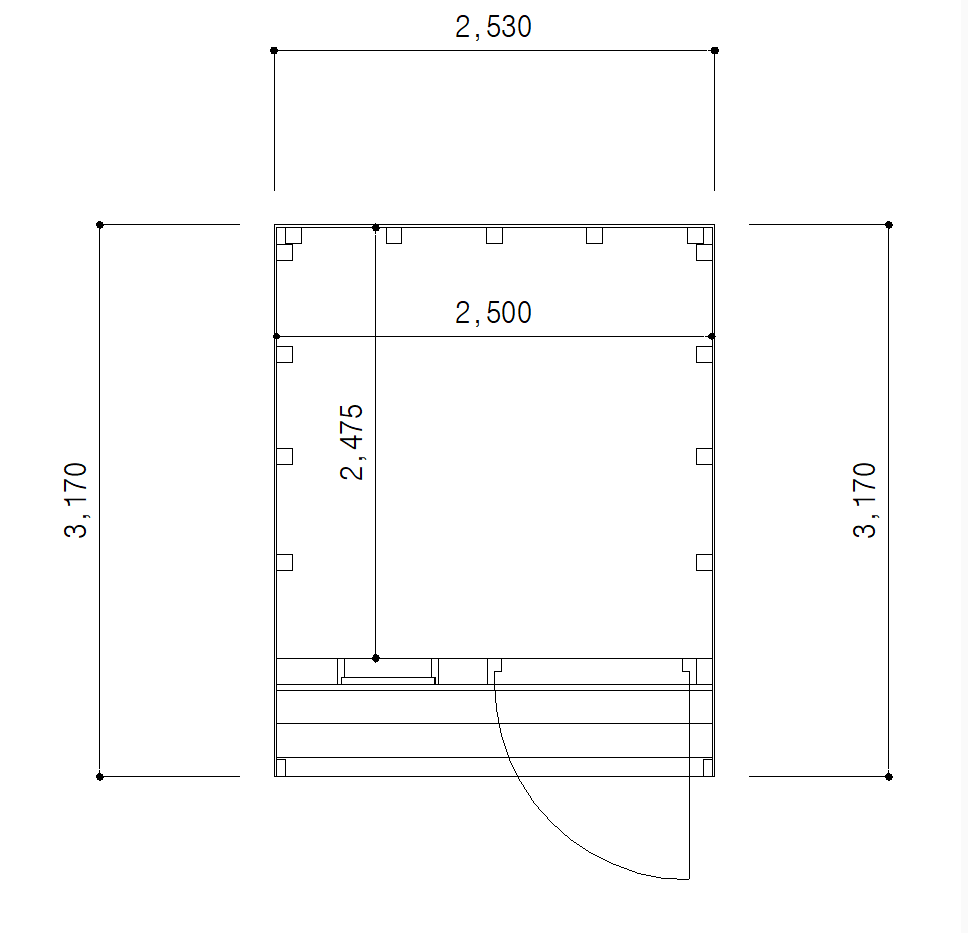
| 사이즈 (외경) | (가로) 2.5 × (세로) 3.1 × (높이) 3.2 / 2톤 |
| 외장재 | 금속골강판/스프러스 |
| 내장재 | 친환경 합판 |
| 단열 | 없음 |
현관문 | 나무문 |
| 바닥 마감 | 카페트 타일 |
| 포함 | 내부조명 2 / 내부 콘센트 2/현관 방충망 |
| 바퀴구조 디자인 등록 | 제 30-1231788호 휠구조는 디자인등록되어있는 마룸의 디자인입니다. 디자인보호법 제 115조 제 1항에 의거해 자사의 디자인권을 침해할경우 손해배상을 청구할수있습니다. |
| 기타 포함사항 | 내부,외부 조명1ea/ 콘센트 1ea/ 조명 스위치 |
| 추가 비용 | 상차:지게차 (20만원) / 하차:25톤 크레인 (착불) 운송비: 5톤 화물 (거리별) 설치비:60-만원 |
| 추가비용 | |||
| 운송비 | 하단운임표 참조 | ||
| 상차비 | 지게차 20만원 | 하차비 | 25톤 크레인 (착불) |
| 출장 설치비 | 60만원 | ||
| 거리별 (단위 km) | 7톤 화물 (단위,만) |
| -15 | 40 |
| 15-60 | 50 |
| 60-110 | 60 |
| 110-150 | 70 |
| 150-200 | 70 |
| 200-300 | 80 |
| 300-330 | 90 |
| 330-350 | 100 |
| 350-370 | 110 |
| 370-400 | 120 |
| 400-450 | 130 |
| 500- | 150 |

CABIN
절제한 창고
Hut
마룸이 디자인한 가든하우스,HUT
1.소재의 소박함
창고가 돋보이지 않고 조연이 되길 바랍니다.그래서 가장 적합한,어디에서나 볼수있는 골강판을 사용하였습니다.
골강판 중에서도 패턴이 불규칙적이고 심미적인 아연도금 골강판을 사용하였습니다.
골강판은 충분히 시간이 흐르면 시골의 오래된 방앗간처럼 산화되어 자연스럽게 갈색이 되고,전면의 스프러스는 회색빛으로 에이징이 됩니다.

2. 구조의 견고함(평생 사용할 수 있는 안정적인 구조)
창고는 평생 동안 외부의 악조건(비바람, 태풍, 폭우, 폭설 등)에 노출됩니다.
DIY로 값싸게 구입할 수 있는 플라스틱 창고나 강판 창고는 성인 남성 1인이 쉽게 설치할 수 있는 장점이 있지만, 쉽게 만들 수 있는 만큼 내구성에도 한계가 있습니다.
창고는 견고해야 합니다. 시중의 제품은 최소한의 기능을 갖추고 가장 합리적인 가격으로 공급되지만, 사실 창고는 어떤 환경에서도 견딜 수 있는 내구성에 초점을 맞춰야 합니다.
따라서 창고는 공장에서 100% 제작된 제품일 때 내구성을 보장할 수 있습니다.

3. 건축허가의 자유로움
시중에 판매되는 대부분의 창고는 법규적인 측면에서 맹점을 가지고 있어 철거될 가능성을 항상 내포하고 있습니다.
물론 해체 후 다시 설치할 수도 있지만, 그런 번거로운 일은 가능한 피하는 것이 좋겠죠.
마룸의 휠은 고하중 바퀴와 높이 조절 좌가 창고와 어울리도록 처음부터 일체화된 디자인으로 계획되었습니다.
허가만 벗어나기 위해 억지로 달린 바퀴는 전복의 위험성을 내포하고 있습니다.
반면, 마룸의 휠은 강풍에 대응하며 실제로 움직일 수 있는 견고함이 장점입니다.

4. 디테일이 없는 디테일
소박하면서도 존재감을 드러내지 않고, 견고한 아날로그 창고를 디자인했습니다.
창고는 방수가 기본이며, 러프한 외관 속에 치밀한 계산이 담겨 있습니다.
내부는 새로운 E0급 친환경 합판과 90x90 사이즈의 구조목을 사용하여 구조와 마감을 동시에 해결합니다.
창고안쪽은 누구나 편하게 원하는 대로 꾸밀 수 있도록 구조목으로 다양한 가능성을 담았습니다.
합판+방수 시트+골강판으로 견고한 방수 능력을 갖추었습니다.



5. 창의 개폐방식
전면에 아날로그한 창이 있어 창고 안쪽까지 빛이 들어옵니다.
나무 창문은 막대로 고정할 수 있고, 위로 열립니다
에어쇼바를 적용할 수도 있지만, 이 창고에서는 이 방식이 더 어울립니다.
창문을 고정하는 막대는 경첩이 달려 있고, 막대 안쪽에는 자석이 매립되어 있어 접히면 자연스럽게 창문과 하나가 됩니다.





내부
내부는 60cm 간격으로 구조목이 일정하게 세워져 있습니다.
덕분에 구조목을 이용해 기성 선반을 구입하거나, 목공으로 직접 만들어서 원하는 대로 설치할 수 있습니다
창고의 처마 안쪽과 맞은편 안쪽벽에 각각 조명이 있습니다.
집을 만들 때 적용하는 깔끔한 마감보다는 기교 없이 러프한 모습을 의도했습니다.
가장 기본적인 형태의 조명을 적용하였고, 창고 안쪽에는 1개의 기본 콘센트, 1구 스위치, 그리고 2개의 조명(안과 밖)이 있습니다.
전기 배선은 아주 간단한 형태로, 별도의 누전 차단기는 포함되어 있지 않습니다.
창고 아래에 있는 콘센트를 멀티탭에 꽂아 사용하는 방식입니다.
<자주 묻는 질문>
✔ 건축 허가 없이 설치 가능한가요? → 네, 바퀴가 장착된 이동식 창고로 허가 없이 사용 가능합니다.
✔ 설치는 어떻게 하나요? → 제품이 완조립된 상태로 배송되며, 크레인이나 지게차를 이용해 원하는 곳에 배치하면 됩니다.
✔ 전기 연결이 가능한가요? → 네, 내부 콘센트 및 조명이 기본 제공됩니다.
" 우리가 만드는 내구성 있는 것들이 좋은 경험을 쌓고 영감의 원천이 되어, 당신의 삶이 풍요롭도록 기여하고자 합니다. "


| SPEC | |
| 모델 | 헛 / hut |
| 구조 | 하이브리드 금속구조(아연각관+구조목) |
| 사이즈 (외경) | (가로) 2.5 × (세로) 3.1 × (높이) 3.2 / 2톤 |
| 외장재 | 금속골강판/스프러스 |
| 내장재 | 친환경 합판 |
| 단열 | 없음 |
현관문 | 나무문 |
| 바닥 마감 | 카페트 타일 |
| 포함 | 내부조명 2 / 내부 콘센트 2/현관 방충망 |
| 바퀴구조 디자인 등록 | 제 30-1231788호 휠구조는 디자인등록되어있는 마룸의 디자인입니다. 디자인보호법 제 115조 제 1항에 의거해 자사의 디자인권을 침해할경우 손해배상을 청구할수있습니다. |
| 기타 포함사항 | 내부,외부 조명1ea/ 콘센트 1ea/ 조명 스위치 |
| 추가 비용 | 상차:지게차 (20만원) / 하차:25톤 크레인 (착불) 운송비: 5톤 화물 (거리별) 설치비:60-만원 |
| 추가비용 | |||
| 운송비 | 하단운임표 참조 | ||
| 상차비 | 지게차 20만원 | 하차비 | 25톤 크레인 (착불) |
| 출장 설치비 | 60만원 | ||
| 거리별 (단위 km) | 7톤 화물 (단위,만) |
| -15 | 40 |
| 15-60 | 50 |
| 60-110 | 60 |
| 110-150 | 70 |
| 150-200 | 70 |
| 200-300 | 80 |
| 300-330 | 90 |
| 330-350 | 100 |
| 350-370 | 110 |
| 370-400 | 120 |
| 400-450 | 130 |
| 500- | 150 |

