4평형 오각집 / 농어촌민박 자연쉼터 [마룸]
28,600,000원
| 디자인/ 제작 | 마룸 |
| 모델 | 오각 (4평)/경남 밀양 |
| 사이즈 | 3.2 * 4.1 * 3.3(높이) |
| 단열 | 벽 135 T / 지붕235 T / 바닥 50T |
| 소재 | WOOD,STEEL ,GLASS |
| 제작기간 | T 062-953-2370 (전화문의) |
| 가격 | 2,860 만원 ( Vat 포함 ) |
| 기타 | 운송비,상하차비,설치비는 별도 *7톤화물차와 25톤 크레인이 진입가능한곳만 설치가능합니다.(전화 문의) |
| 용도 | 글램핑장,자연휴양림,농장,에코 호텔,스파 리조트,농막,애견팬션 |
<이 오각집은 별채로 활용된 밀양 설치 사례입니다.>
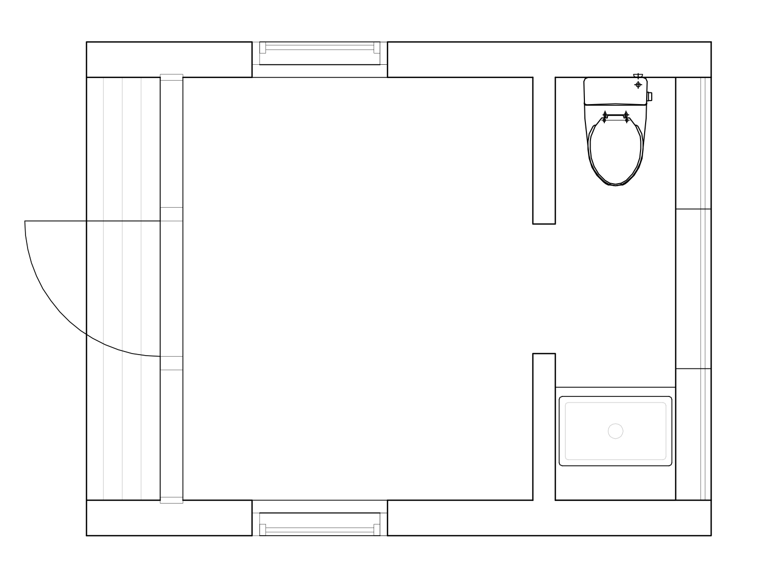
처마 포함 4평 규모의 기본 구조는 동일하지만, 실내 구성에 차이가 있습니다.
가장 큰 특징은 건식 화장실이 포함되어 있다는 점입니다.
화장실과 거실 사이에는 문이 있어 완전히 공간을 분리할 수 있어, 독립적인 방처럼 사용할 수 있습니다.
전면부에는 탁 트인 유리창을 두어 자연을 정면으로 마주하며 머무를 수 있고,
전체적으로 따뜻한 원목 마감으로 작은 집 안에서도 안정감을 느낄 수 있도록 구성했습니다.
작지만 온전한 독립 공간이 필요한 별채 용도로 적합한 구조입니다.
위치확인
위치확인
CABIN
절제한 오두막
오각 OGAC














" 우리가 만드는 내구성 있는 것들이 좋은 경험을 쌓고 영감의 원천이 되어, 당신의 삶이 풍요롭도록 기여하고자 합니다. "


| SPEC | |
| 모델 | 오각 / OGAC |
| 구조 | 하이브리드 금속구조(아연각관+구조목) |
| 사이즈 (외경) | (가로) 3.2 × (세로) 4.1 × (높이) 3.3 |
| 외장재 | 스프리스,구조목 |
| 내장재 | 핀란드 스프리스 |
| 단열두께 | 벽 135 T / 지붕235 T / 바닥 50T |
현관문 | 단열 도어/방충망 포함 |
| 창호 | Tilt (900*900) -2ea |
| 바닥 마감 | 원목마루 |
| 바닥 난방 | 전기온수난방 |
| 포함 | 내부조명 2 / 내부 콘센트 2/현관 방충망 |
| 욕실 구성(건식) | 원피스 양변기,개수대 , 휴지 걸이(샤워 불가능) (사진상에 있는 변기는 건축주 옵션 변기입니다.) |
| 기타 포함사항 | 내부조명 2 / 내부 콘센트 2 / 현관 방충망 / 욕실 환풍기 |
| 추가 비용 | 상차:지게차 (20만원) / 하차:25톤 크레인 (착불) 운송비: 7톤 화물 (거리별) 설치비:60-만원 |
| 추가비용 | |||
| 운송비 | 하단운임표 참조 | ||
| 상차비 | 지게차 20만원 | 하차비 | 25톤 크레인 (착불) |
| 출장 설치비 | 60만원 | ||
| 거리별 (단위 km) | 7톤 화물 (단위,만) |
| -15 | 40 |
| 15-60 | 50 |
| 60-110 | 60 |
| 110-150 | 70 |
| 150-200 | 70 |
| 200-300 | 80 |
| 300-330 | 90 |
| 330-350 | 100 |
| 350-370 | 110 |
| 370-400 | 120 |
| 400-450 | 130 |
| 500- | 150 |

CABIN
절제한 오두막
오각 OGAC














" 우리가 만드는 내구성 있는 것들이 좋은 경험을 쌓고 영감의 원천이 되어, 당신의 삶이 풍요롭도록 기여하고자 합니다. "


| SPEC | |
| 모델 | 오각 / OGAC |
| 구조 | 하이브리드 금속구조(아연각관+구조목) |
| 사이즈 (외경) | (가로) 3.2 × (세로) 4.1 × (높이) 3.3 |
| 외장재 | 스프리스,구조목 |
| 내장재 | 핀란드 스프리스 |
| 단열두께 | 벽 135 T / 지붕235 T / 바닥 50T |
현관문 | 단열 도어/방충망 포함 |
| 창호 | Tilt (900*900) -2ea |
| 바닥 마감 | 원목마루 |
| 바닥 난방 | 전기온수난방 |
| 포함 | 내부조명 2 / 내부 콘센트 2/현관 방충망 |
| 욕실 구성(건식) | 원피스 양변기,개수대 , 휴지 걸이(샤워 불가능) (사진상에 있는 변기는 건축주 옵션 변기입니다.) |
| 기타 포함사항 | 내부조명 2 / 내부 콘센트 2 / 현관 방충망 / 욕실 환풍기 |
| 추가 비용 | 상차:지게차 (20만원) / 하차:25톤 크레인 (착불) 운송비: 7톤 화물 (거리별) 설치비:60-만원 |
| 추가비용 | |||
| 운송비 | 하단운임표 참조 | ||
| 상차비 | 지게차 20만원 | 하차비 | 25톤 크레인 (착불) |
| 출장 설치비 | 60만원 | ||
| 거리별 (단위 km) | 7톤 화물 (단위,만) |
| -15 | 40 |
| 15-60 | 50 |
| 60-110 | 60 |
| 110-150 | 70 |
| 150-200 | 70 |
| 200-300 | 80 |
| 300-330 | 90 |
| 330-350 | 100 |
| 350-370 | 110 |
| 370-400 | 120 |
| 400-450 | 130 |
| 500- | 150 |


