슬로우 캐빈 9|자연 속 호텔 같은 9평 이동주택[마룸]
| 디자인/ 제작 | 마룸 |
| 모델 | 슬로우 캐빈 9 /리버티 |
| 사이즈 | 3. 2* 9.2 * 3.3(높이) |
| 단열 | 벽 135T / 지붕 235T / 바닥 압축단열재 50T |
| 제작기간 | T 062-953-2370 (전화문의) |
| 가격 | 8,580 만원 ( Vat 포함 ) |
| 기타 | 운송비,상하차비,설치비는 별도 |
| 용도 | 세컨하우스,스테이,농어촌민박,근생,주택,농촌체류형쉼터 |
슬로우 캐빈 9은 자연 속에 머무는 감각을 담은 9평 규모의 이동주택입니다.
호텔처럼 쾌적하게 머무를 수 있도록 욕실, 싱크대, 침대까지 모든 공간에 자연을 끌어들였습니다.
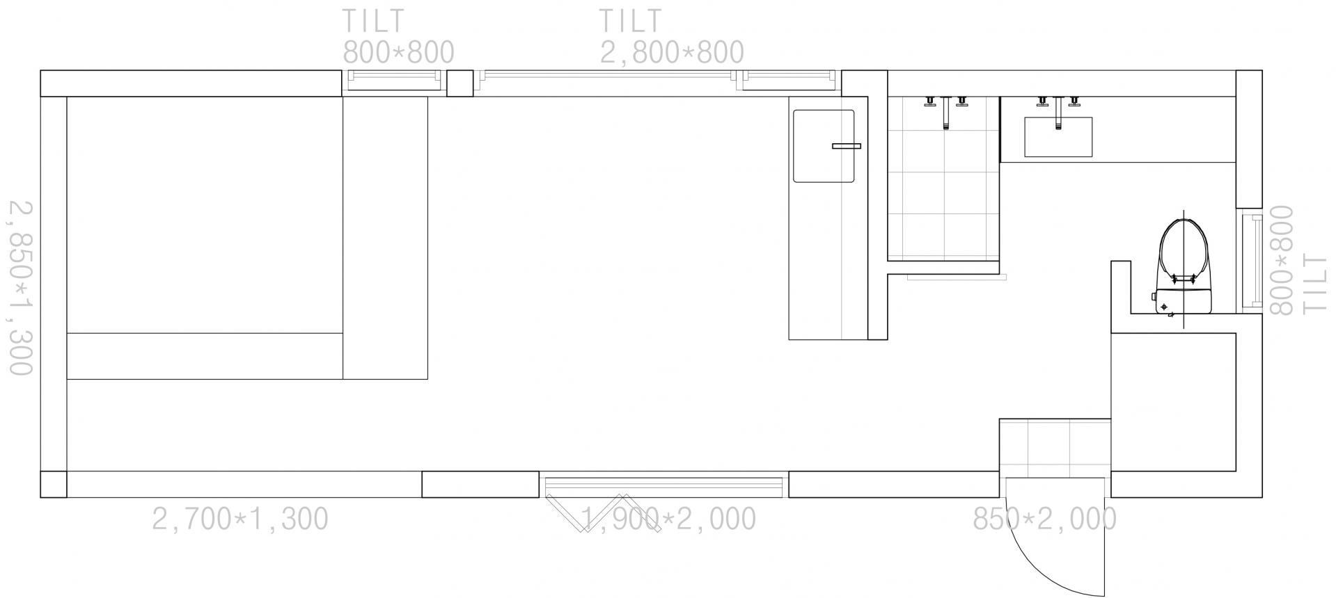
싱크대는 1.9m 길이로 상·하부장을 포함하고, 접이식 테이블과 빌트인 냉장고, 전자레인지 수납 공간까지 갖추었습니다.
욕실은 샤워부스(습식)와 마루 바닥(건식)으로 나뉘며, 전면 통창을 통해 외부 풍경을 감상할 수 있습니다.
침대 앞과 옆으로는 LOW-E 복층 유리를 적용하여 사계절 내내 자연을 즐길 수 있습니다.
욕실 슬라이딩도어를 열면 가장 먼저 탁 트인 풍경이 맞이합니다.
샤워하는 동안, 앉아 쉴 때, 잠드는 순간까지…
모든 시선이 자연으로 향하는 집, 슬로우 캐빈 9입니다.
CABIN
SLOW CABIN 9
호텔의 소형 객실같은 9평 캐빈
<슬로우 캐빈 9>은 녹음에 둘러싸인 자연속에 머무는 호텔같은 집입니다 .지리산 기슭의 맑은공기 가득한 텐트에 머물듯 씻고, 비우고, 잠드는 곳에 자연을 담아냈습니다 .
계절마다 달라지는 풍경을 바라볼 수 있는 장점이 있습니다.


출입구






거실겸 부엌

싱크대는 1.9미터이고 상부장과 하부장을 포함합니다.
상부장에는 전자레인지와 접시를 수납합니다. 접시를 수납하기 쉽게 상부장 바닥을 수납트레이와 일체화하여 통기가 원활하게 설계하였습니다.
하부장은 왼쪽은 전기온수기를 설치할 수 있고, 가운데는 서랍, 오른쪽은 접이식테이블과 빌트인냉장고가 있습니다.
복도위에는 에어컨 피트실이 있어서 원하는 용량의 에어컨을 설치할 수 있습니다.







완벽한 워케이션을 위한 침실


침대에서 벽을 등지고 앉았을 때 전면과 측면 2면에 양면코팅한 LOW-E복층유리가 있습니다.
욕실부터 침대까지 동일하게 800mm의 높이로 창을 내어서 시선이 차분하게 밖으로 향합니다.
침대 머리맡을 제외한 모든방향에 창을 내었습니다.


건습식 욕실/화장실



욕실의 나무슬라이딩도어를 열면 탁트인 풍경이 가장먼저 여행자를 반깁니다.
이 요소만으로도 다른 숙소와 명확하게 구분이됩니다.
통창을 통해 욕실안에서 샤워, 세면, 변기를 사용할 때 밖을 바라보며 자연의 변화를 관찰할 수 있습니다.
굳이 자쿠지가 아니더라도 밖에서 샤워하는 경험을 전달해줍니다.
욕실의 구성은 습식과 건식으로 구분되어있습니다.
샤워부스는 습식이고, 세면대와 변기는 따듯한 마루바닥을 맨발로 다닙니다.
변기가 있는 벽에는 밖으로 열리는 Tilt창이 있어서 자연환기를 할 수 있습니다.






슬로우 캐빈9 평면

" 우리가 만드는 내구성 있는 것들이 좋은 경험을 쌓고 영감의 원천이 되어, 당신의 삶이 풍요롭도록 기여하고자 합니다. "

| SPEC | |
| 모델 | 슬로우 캐빈 9평 / SLOW CABIN 9 |
| 가격 | 8,580만원 (vat 포함) |
| 구조 | 하이브리드 금속구조(아연각관+구조목) |
| 사이즈 (외경) /M | (W)3.2 × (L)9.2 × (H) 3.3 |
| 벽,지붕 외장재 | (2중 방수 후) 스프러스 |
| 내장재 | 자작합판 |
| 단열두께 | 지붕 235T / 벽 135 T / 바닥 압축50T |
| 욕실 | 샤워실(습식)/ 매립형 벽샤워기/원피스 양변기/슬라이딩 도어/유리부스/ 건식세면대하부장 *비데일체형양변기 |
| 바닥난방 | 전기온수 난방 |
| 바닥 마감 | 원목마루 |
| 폴딩도어 (1,900*2000) | 단열폴딩 |
| 원목 싱크대/원목 상부장 (이미지 참조) | 개수대,수전,빌트인 냉장고 포함/인덕션 2구 |
| 추가 비용 | 상차:25톤 크레인 (70만원) / 하차:25톤-50 크레인 (착불) / 운송비:7톤 화물(거리별)/ 설치비:70-90만원 |
| 추가비용 | |||
| 운송비 | 하단운임표 참조 | ||
| 상차비 | 25톤 크레인 70만원 | 하차비 | 25톤-50톤 크레인 (현장 착불) |
| 출장 설치비 | 70-90만원 | ||
| 거리별 (단위 km) | 7톤 화물 (단위,만) |
| -15 | 60 |
| 15-60 | 70 |
| 60-110 | 80 |
| 110-150 | 90 |
| 150-200 | 90 |
| 200-300 | 100 |
| 300-330 | 110 |
| 330-350 | 120 |
| 350-370 | 130 |
| 370-400 | 140 |
| 400-450 | 150 |
| 500- | 170 |

CABIN
SLOW CABIN 9
호텔의 소형 객실같은 9평 캐빈
<슬로우 캐빈 9>은 녹음에 둘러싸인 자연속에 머무는 호텔같은 집입니다 .지리산 기슭의 맑은공기 가득한 텐트에 머물듯 씻고, 비우고, 잠드는 곳에 자연을 담아냈습니다 .
계절마다 달라지는 풍경을 바라볼 수 있는 장점이 있습니다.


출입구






거실겸 부엌

싱크대는 1.9미터이고 상부장과 하부장을 포함합니다.
상부장에는 전자레인지와 접시를 수납합니다. 접시를 수납하기 쉽게 상부장 바닥을 수납트레이와 일체화하여 통기가 원활하게 설계하였습니다.
하부장은 왼쪽은 전기온수기를 설치할 수 있고, 가운데는 서랍, 오른쪽은 접이식테이블과 빌트인냉장고가 있습니다.
복도위에는 에어컨 피트실이 있어서 원하는 용량의 에어컨을 설치할 수 있습니다.







완벽한 워케이션을 위한 침실


침대에서 벽을 등지고 앉았을 때 전면과 측면 2면에 양면코팅한 LOW-E복층유리가 있습니다.
욕실부터 침대까지 동일하게 800mm의 높이로 창을 내어서 시선이 차분하게 밖으로 향합니다.
침대 머리맡을 제외한 모든방향에 창을 내었습니다.


건습식 욕실/화장실



욕실의 나무슬라이딩도어를 열면 탁트인 풍경이 가장먼저 여행자를 반깁니다.
이 요소만으로도 다른 숙소와 명확하게 구분이됩니다.
통창을 통해 욕실안에서 샤워, 세면, 변기를 사용할 때 밖을 바라보며 자연의 변화를 관찰할 수 있습니다.
굳이 자쿠지가 아니더라도 밖에서 샤워하는 경험을 전달해줍니다.
욕실의 구성은 습식과 건식으로 구분되어있습니다.
샤워부스는 습식이고, 세면대와 변기는 따듯한 마루바닥을 맨발로 다닙니다.
변기가 있는 벽에는 밖으로 열리는 Tilt창이 있어서 자연환기를 할 수 있습니다.






슬로우 캐빈9 평면

" 우리가 만드는 내구성 있는 것들이 좋은 경험을 쌓고 영감의 원천이 되어, 당신의 삶이 풍요롭도록 기여하고자 합니다. "

| SPEC | |
| 모델 | 슬로우 캐빈 9평 / SLOW CABIN 9 |
| 가격 | 8,580만원 (vat 포함) |
| 구조 | 하이브리드 금속구조(아연각관+구조목) |
| 사이즈 (외경) /M | (W)3.2 × (L)9.2 × (H) 3.3 |
| 벽,지붕 외장재 | (2중 방수 후) 스프러스 |
| 내장재 | 자작합판 |
| 단열두께 | 지붕 235T / 벽 135 T / 바닥 압축50T |
| 욕실 | 샤워실(습식)/ 매립형 벽샤워기/원피스 양변기/슬라이딩 도어/유리부스/ 건식세면대하부장 *비데일체형양변기 |
| 바닥난방 | 전기온수 난방 |
| 바닥 마감 | 원목마루 |
| 폴딩도어 (1,900*2000) | 단열폴딩 |
| 원목 싱크대/원목 상부장 (이미지 참조) | 개수대,수전,빌트인 냉장고 포함/인덕션 2구 |
| 추가 비용 | 상차:25톤 크레인 (70만원) / 하차:25톤-50 크레인 (착불) / 운송비:7톤 화물(거리별)/ 설치비:70-90만원 |
| 추가비용 | |||
| 운송비 | 하단운임표 참조 | ||
| 상차비 | 25톤 크레인 70만원 | 하차비 | 25톤-50톤 크레인 (현장 착불) |
| 출장 설치비 | 70-90만원 | ||
| 거리별 (단위 km) | 7톤 화물 (단위,만) |
| -15 | 60 |
| 15-60 | 70 |
| 60-110 | 80 |
| 110-150 | 90 |
| 150-200 | 90 |
| 200-300 | 100 |
| 300-330 | 110 |
| 330-350 | 120 |
| 350-370 | 130 |
| 370-400 | 140 |
| 400-450 | 150 |
| 500- | 170 |

